Wohnpark Gute Hoffnung
Wir freuen uns, Ihnen mitteilen zu können, dass wir voraussichtlich im Dezember 2024 unser 4. Haus (Haus E) im Wohnpark Gute Hoffnung fertigstellen werden!
Auch diese Wohnungen bieten hervorragende Ausstattung, großzügige Grundrisse und sind bereit für neue Mieter- hier ist für jeden etwas dabei. Unsere Häuser sind mit einem Fahrstuhl ausgestattet, um Ihnen den Zugang zu allen Etagen zu erleichtern.
Zusätzlich sind unsere Wohnungen barrierefrei gestaltet, um Menschen mit eingeschränkter Mobilität optimalen Komfort zu bieten.
Unsere Wohnungen werden umweltfreundlich und kostengünstig beheizt, indem wir Fernwärme in Kombination mit Fußbodenheizung und Photovoltaik nutzen.
Unsere Wohnungen sind modern ausgestattet und verfügen über einen Internetanschluss per Glasfaser, der Ihnen einen schnellen und zuverlässigen Zugang zu Online-Diensten und Fernsehprogrammen bietet.
Die Wohnungen sind nach modernsten Ansprüchen sach-und fachgerecht erstellt worden.
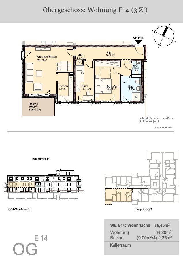
Hier finden Sie die Grundrisse von Haus-E-
Jetzt entdecken und verlieben!
Was wir Ihnen bieten:
- KfW 55 Standard
- Barrierefreie Zugänge
- Fußbodenheizung
- Fahrstuhl
- Großzügige Balkone, Terrassen, teilweise mit Garten
- Tiefgaragenplätze anmietbar
- Photovoltaik
- Elektroladestationen

Aufstellung aller Wohnungen
Die folgenden Wohnungen stehen noch zur Verfügung

Wohnung E14
Obergeschoss 3 Zimmer, 86,45 m² plus Balkon (9 m²) und Kellerraum
ab dem 01.01.2026
Die Darstellungen sind nur als Beispiele zu verstehen und geben die endgültige Ausführung nicht wieder. Die Zeichnungen erheben insoweit keinen Anspruch auf Vollständigkeit und Richtigkeit. Änderungen könnten sich aufgrund von Planungsänderungen und behördlichen Auflagen ergeben. Prospekthaftungsausschluss
